張貼者
南竿航空站施工公告 --閱讀人次 : 1218 尊敬的馬祖居民:
為提升本機場的基礎設施,現將進行以下施工。具體事項公告如下:
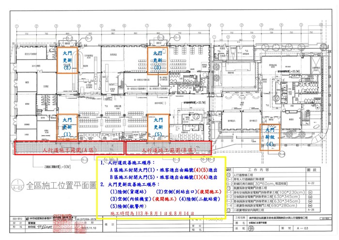
1. 施工項目:南竿機場航廈旅客出口人行道路維修及大門改造等工程
2. 施工地點:南竿機場航廈旅客出入口
3. 施工時間:
- 開始日期:113年8月1日
- 結束日期:113年8月14日
- 施工時間:每日07:00至24:00
4. 施工內容:「更換航廈大門」及「重新鋪設人行道路面」等。
5. 注意事項:
- 施工期間可能會產生噪音,敬請諒解。
- 施工區域將設置臨時圍欄,請注意安全,避免進入施工現場。
- 施工期間,請旅客由二航廈進入,離站旅客請由航警室旁的大門進入。
6. 聯絡方式:如有任何疑問或需了解更多信息,請聯繫:
- 聯絡人:林小華
- 聯絡電話:0933-932443
我們對由此給您帶來的不便深表歉意,並感謝您的理解與支持。
附加PDF文件檔: matsu-6ab1a053629251b02b9353aa8ec854cf.pdf


